Excel beam calculation (EBC)
adalah spreadsheet program hitung balok yang dibuat dengan bantuan
microsoft excel. Keluaran (output) dari program ini adalah luas dan
jumlah kebutuhan tulangan lentur (utama), geser dan torsi dari sebuah
balok. Selain itu, juga dilengkapi dengan kontrol regangan beton dan
baja tulangan untuk mengetahui status desain tulangan yang terpasang
pada balok tersebut apakah kurang (under reinforcement), seimbang
(balanced reinforcement) atau kah malah berlebih (over reinforcement).
Sekedar sebagai catatan,keadaan balok yang under, balanced dan over reinforcement sangat penting untuk dikontrol dan diketahui, karena ini hubungannya dengan cara balok dalam mengalami keruntuhan, apakah nanti balok tersebut bersifat ductile failure (runtuh tarik), balance (runtuh seimbang), ataukah brittle failure (runtuh tekan).ductile failure adalah mode keruntuhan yang diharapkan karena memberikan tanda berupa lendutan sebelum balok mengalami keruntuhan, hal ini dikarenakan baja tulangannya sudah leleh terlebih dahulu sebelum beton mencapai regangan maksimalnya (dengan kata lain, beton belum hancur tapi baja tulangannya sudah leleh). Keadaan demikian ini “menguntungkan” bagi kepentingan kelangsungan hidup manusia, karena ada peringatan tentang lendutan membesar sebelum runtuh.balance adalah mode keruntuhan yang paling diharapkan dan sangat ideal, karena hancurnya beton bersamaan dengan lelehnya baja tulangan. Karena beton dan baja rusak secara bersamaan, maka kekuatan beton dan baja tulangan dapat dimanfaatkan sepenuhnya, sehingga penggunaan material beton dan baja tersebut jadi lebih hemat. (Tapi dalam prakteknya sangat sulit dicapai karena beberapa faktor,… apakah faktor-faktor tersebut ? nanti akan saya akan jelaskan di episode berikutnya hehe :D)brittle failure adalah keadaan yang paling tidak diharapkan dan harus dihindari, karena beton lebih dulu hancur sebelum melelehnya baja tulangan. Hal ini terjadi karena tulangannya terlalu kuat (over reinforced), sehingga saat betonnya akan hancur baja tulangannya masih belum leleh, sehingga ketika diatas balok diberi tambahan beban yang besar, maka tak ayal lagi akan grubyaaaaaak…… (terjadilah keruntuhan mendadak tanpa peringatan terlebih dahulu),… bisa almarhum tuh orang orang dibawahnya kejatuhan balok beton hehe… :DPenjelasan secara lengkap mengenai ini akan saya jelaskan di posting saya berikutnya yang berjudul “ Perencanaan Balok Dengan Tulangan Rangkap-Part 1”
Input program EBC
adalah data material balok meliputi lebar dan tinggi penampang balok (b
dan h), selimut beton (d), jarak titik berat tulangan tarik ke serat
tepi beton tarik (ds), kuat karakterisitik beton (fc), mutu baja
tulangan (fy dan fys), ukuran diameter tulangan rencana (reinf), serta
momen ultimite (Mu), geser ultimate (Vu) dan torsi ultimate (Tu) yang
terjadi pada balok.
Untuk Mu, Vu dan Tu,
dihitung sendiri melalui hitungan manual atau melalui bantuan software
analisa struktur seperti SAP, STAAD, ETABS,… dan lain sebagainya.
Tidak ada yang istimewa dari program EBC ini dari sisi interface. Interface EBC hanyalah sekumpulan data yang ditata sedemikian rupa didalam tabel-tabel (cell) yang disediakan oleh excel.
Mengapa demikian?
Karena memang tujuan dari pembuatan EBC
ini difokuskan untuk menampung banyak data, yaitu data2 element balok
struktur dan gaya dalam dari element2 balok struktur tersebut.
Data2 tersebut kemudian diolah sedemikian rupa dalam tabel excel untuk didapatkan desain tulangannya.
Berikut adalah screenshoot program EBC
Terus bagaimana cara penggunaan Spreadsheet (program) EBC ini ?
Sebelum kita akan membahas lebih lanjut mengenai bagaimana cara penggunaan EBC ini, Mungkin ada baiknya sobat download dulu file staad.rar dibawah ini sebagai bahan untuk pembahasan.
download : staad.rar
(Catatan : setelah didownload, extract “staad.rar, kemudian buka file “structure1.std” dengan menggunakan STAAD)
1.
Katakanlah saya akan menganalisa sebuah pemodelan struktur portal
dengan bentuk geometri seperti berikut ini (file ‘structure1.std)
Element/member balok = 7Dimensi element/member balokR2 = 20/35, member : 10, 11, 12, 13R3 = 20/30, member :2, 5, 8
Element/member kolom = 6R1 = 30/30, member : 1, 3, 4, 6, 7, 9
Frame
portal terdiri dari balok – kolom dengan ukuran seperti diatas. Lebar
antar kolom arah – X = 4 m, arah – Y = 5 m, dan tinggi portal = 4 m,
diatasnya terdapat pelat setebal t = 12 cm yang menyangga beban hidup
sebesar 100 kg/m2.
Untuk mencari gaya-gaya dalam yang terjadi, maka saya menggunakan STAAD Pro sebagai program bantu untuk menganalisanya.
Lhooo,… kenapa yang dipakai STAAD Pro? bukan SAP, ETABS atau yang lainnya ?…
ya sebenarnya pakai SAP, ETABS ataupun yang lainnya tidak jadi masalah, hanya saja EBC
yang saya buat lembar input data untuk memasukan data gaya dalam sudah
disesuaikan dengan settingan lembar output gaya dalam dari STAAD, jadi
tinggal di copy paste aja gitu,… hehehe ^_^
Yup,.. kembali ke topik.
1. Dari analisa STAAD didapat gaya2 dalam (momen, geser dan torsi) sebagai berikut :
Catatan :1. Untuk mengakses output gaya axial, momen, geser dan torsi seperti diatas, bisa didapat melalui menu Post Procesing. (lihat gambar bawah)![]()
2. Setting ‘Force Units” agar ouput satuan untuk distance, axial forces, shear forces dan bending moment berturut-turut yaitu mm, N, N, dan KNm. Untuk keperluan ini, sobat bisa mengaksesnya di tools ‘Change Graphical Display Units’3. Saya tidak akan membahas lagi dasar-dasar operasi STAAD, karena saya anggap sobat sudah paham. Bagi sobat yang belum paham silahkan sobat pelajari di posting “Perencanaan Ruko Dua Lantai Dengan Program Bantu STAAD Pro Part 1 – 4”
2. Hasil output tersebut diatas kemudian di copy dengan cara mengklik kiri 2x di pojok kiri atas (tepatnya ditulisan “beam”) sehingga semua data terselect dengan blok berwarna hitam, kemudian dilanjutkan dengan meng klik kanan dan pilih Copy
3. Buka program Excel, kemudian Paste – kan hasil copy tersebut (hasilnya seperti gambar dibawah ini).
4. Sekarang seleksi dan copy kembali data hasil paste tersebut, tapi hanya pada bagian distance dan gaya dalamnya saja. (lihat gambar dibawah)
5. Buka EBC – kemudian klik pada tab sheet “OUTPUT STAAD” kemudian Paste kan hasil Copy tadi ke sheet ini.
sehingga hasilnya seperti ini :
6. Klik tab sheet “Rencana Balok”, kemudian inputkan data rencana balok sesuai dengan data yang telah kita masukan pada STAAD, yaitu TYPE 2 =R2 = 20/35 dan TYPE =R3 = 20/30.
Ketik di cell (A,2) = 2
Ketik di cell (B,2) dan (C,2) masing-masing = 200 dan 350
Ketik di cell (A,3) = 3
Ketik di cell (B,3) dan (C,3) masing-masing = 200 dan 300
Catatan :R1 = 30/30 tidak usah dimasukan karena R1 adalah type kolom. EBC hanya untuk desain balok bukan desain kolom, jadi R1 tidak dianalisa)
Okey!,
sampai step ini kita telah selesai menginput semua data yang
diperlukan, yaitu data gaya dalam dan data balok rencana. Sekarang
saatnya untukmengetahui hasil desain tulangan dari masing2 element
balok.
7. Klik sheet “TulanganLentur”. Select atau blok cell (A,16-18) sampai dengan (BD,16-18)kemudian copy lah sampai 7x kebawah (cat : karena jumlah baloknya ada 7, jadi ngopy nya harus 7). Lihat gambar bawah.
Hasilnya seperti ini,
8. Ganti atau isi membernya dengan nomor element balok yang akan dianalisa yaitu element 2, 5, 8, 10, 11, 12, 13. Kemudian ganti typenya sesuai dengan type element/member dari STAAD, yaitu type 2 (20/35) untuk member10, 11, 12, 13 dan type 3 (20/30) untuk member 2, 5, 8 (Lihat gambar dibawah).
Sekarang
anda perhatikan kolom yang saya beri kotak memanjang kebawah berwarna
hijau. Kolom tersebut adalah kolom untuk input data ds dan reinf.
ds adalah Jarak titik berat tulangan tarik sampai serat tepi beton beton bagian tarik. Sedangkan reinf adalah ukuran diameter tulangan rencana.
reinf = 13, maksudnya :
Tulangan utama yang saya rencanakan berdiameter 13 mm
ds = 44.5, maksudnya :
selimut beton + diameter begel +1/2 (diameter tulangan utama)
= 30 mm + 8mm + 1/2 (13)
= 44.5 mm
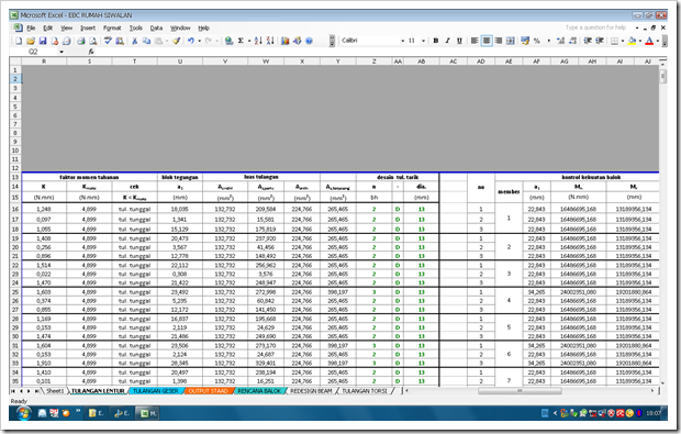
9. Untuk melihat hasil desain tulangan, geser slider ke kekanan. Hasilnya seperti gambar dibawah.
Catatan :
Dari
tabel diatas, terlihat bahwa balok member 2 didesain dengan tulangan
tumpuan 2 D 13 atas-bawah dan lapangan 2 D 13 atas-bawah. Sedangkan
lebar ukuran balok member ini adalah 20 cm, jadi jarak bersih antar
tulangan pada arah mendatar sangat mencukupi sekali (9.6-1 SNI
03-2847-2002).
Nah,… kalau seandainya (ini
misalkan saja lho ya), balok member 2 ini menerima momen yang lebih
besar lagi (ingat : ini hanya misal), sehingga desain tulangan yang
didapat didaerah lapangan adalah 6 D 13 (bawah), maka ds seperti yang saya jelaskan dilangkah no 8 harus di cek ulang
mengapa dicek ulang :
Karena
space balok tidak cukup untuk 6 tulangan jika dipasang dalam 1 lapis.
Sehingga beberapa tulangan harus dipasang satu lapis lagi diatasnya,
untuk menghindari jarak antar tulangan yang terlalu rapat pada arah
mendatar
Dengan dipasangnya 1 lapis tulangan diatasnya maka jarak titik berat tulangan tarik ke serat tepi beton bagian tarik (ds) otomatis akan berubah. (coba lihat gambar bawah)
ds = selimut beton + diameter sengkang + diameter tulangan utama + 1/2 (jarak antar tulangan arah vertikal)
ds = 30 mm + 8 mm + 13 mm + 1/2 (25mm)
ds = 64 mm
Jadi nilai ds nya tidak 44.5 mm lagi sob,… tapi 64 mm (Bila seandainya desain tulangan balok 6 D 13,…)
Sekedar sebagai catatan, bahwa jarak minimal antar tulangan mendatar harus lebih besar dari 25 mm dan disarankan lebih besar dari 40 mm. (9.6-2 SNI 03-2847-2002). Sedangkan untuk arah yang vertical minimal sejarak 25 mm
Dengan berubahnya ds, maka beberapa variabel yang lain akan terpengaruh, sobat harus cek lagi.
Kemudian perhatikan lagi regangan bajanya saat beban ultimate, apakah
semua tulangan sudah leleh (cek yang lapis atas), jika yang atas sudah
leleh maka yang bawah sudah pasti leleh.
Nah,.. selesai, mudahkan sob,...

Spreadsheet EBC ini intinya cuman copy-paste aja kok. Sobat tinggal copy output gaya dalam dari STAAD ke sheet “OUTPUT STAAD” program EBC,
kemudian masukan rencana dimensi balok, setelah itu dengan sedikit edit
dan copy-paste di sheet tulangan lentur, geser dan torsi, maka desain
tulangan akan didapatkan.
Terus bagaimana untuk mendapatkan tulangan geser dan torsi ?
Tinggal Copy-Paste aja sob,… hehe. Langkahnya sama persis seperti langkah nomor 7
EBC
akan menghitung momen pikul yang harus ditahan oleh penampang, jika
momen pikul yang harus ditahan penampang (K) lebih besar dari momen
pikul maksimal yang sanggup ditahan oleh penampang (Kmaks), maka balok
harus dihitung dengan tulangan rangkap atau penampang balok harus
diperbesar,
EBC
tidak akan menganalisa balok yang bertulangan rangkap, oleh karena itu
sebaiknya penampang balok diperbesar saja. Namun seandainya jika sobat
tidak ingin merubah penampang yang berarti balok harus diberi penulangan
rangkap, maka sobat bisa menggunakan EBC2, dimana file dan materinya akan saya posting di edisi berikutnya.
Insya Alloh,…
|
VERIFIKASI
Tentunya
hasil desain yang didapat tidak langsung serta merta dianggap valid dan
bisa langsung diaplikasikan dilapangan, harus ada check ulang terhadap
hasil desain sebagai bentuk“control” sebelum hasil desain tersebut benar-benar akan diaplikasikan. Nah,… sob, untuk keperluan itulah kita butuh adanya “sesuatu”
Apakah “sesuatu” tersebut?
Sesuatu tersebut adalah : “Verifikasi”
Mengapa perlu verifikasi ?
karena
dengan melakukan verifikasi berarti kita telah melakukan peninjauan
kembali terhadap hasil yang didapat, sehingga dengan begitu akan lebih
menjaga mutu atau kualitas desain dan bisa dipertanggungjawabkan.
Okey!, sekarang kita akan verifikasi kembali hasil desain yang didapat.
Kita ambil contoh pada balok nomor 2.
Dimensi balok : 20/30
Panjang balok : 3.00 m
- Check desain tulangan terpasang dan tinggi minimal penampang
Dari analisa yang dilakukan oleh EBC, didapat
d min : 146.562 mm = 14.65 cm
As perlu (tumpuan kiri) : 146.618 mm2
As perlu (Lapangan ) : 168.399 mm2
As perlu (tumpuan kanan) : 146.618 mm2
As min : 223.563 mm2
Desain dari EBC, didapat :
As terpasang (tumpuankiri) : 265.465 mm2 ( 2 D 13) > As min = 223.53… (OK!)
As terpasang (lapangan) : 265.465 mm2 ( 2 D 13) > As min = 223.53… (OK!)
As terpasang (tumpuankan) : 265.465 mm2 ( 2 D 13) > As min = 223.53… (OK!)
Verifikasi :
Dengan melihat as perlu yang lebih kecil dari as min
serta tinggi minimal yang diperlukan oleh balok (dmin) = 14,65 cm
(padahal balok kita tingginya = 30 cm), maka balok ini masih
dimungkinkan untuk diperkecil lagi, misalkan saja diganti dengan ukuran
20/25. (Tapi ini masih asumsi lho ya,… masih perlu ditinjau lagi secara
‘case’ per ‘case’)jika memang jadi dirubah, maka balok tersebut harus sobat cek dulu terhadap lendutan.
(Catatan : Perlu tidaknya balok dicek terhadap lendutan, monggo sobat lihat di SK-SNI)
- Check kekuatan balok terhadap momen ultimate
Dari tabel bisa dilihat bahwa momen rencana balok lebih besar daripada momen ultimatenya (OK!)
Verfikasi : OK!
- Check kondisi beton dan baja tulangan
Dari tabel bisa dilihat bahwa regangan beton masih jauh dari regangan maksimumnya = (0.0002 < 0.003) jadi beton masih aman, sedangkan baja tulangannya sudah melampaui regangan lelehnya = (0.0016 > 0.0231). Karena tulangan meleleh, maka balok akan melendut, dan ini yang diharapkan, yaitu adanya tanda sebelum kehancuran beton.
Jadi jangan khawatir sob,… seandainyapun beban diatas balok ini diperbesar, jauh-jauh sebelum balok ini mencapai regangan maksimalnya (akan runtuh), balok ini akan menunjukan perilaku daktail dengan membentuk lendutan yang membesar pada balok. Jadi setidak-tidaknya sobat punya ‘tanda pegangan’ untuk kabur sewaktu-waktu seandainya balok ini akan runtuh wkwkwk :D
Verfikasi : OK!
- Check balok terhadap gaya geser
Verifikasi : OK!
- Check balok terhadap Torsi
Verifikasi : OK!
Untuk yang lainnya,silahkan di verifikasi sendiri, ya,… mungkin ada item dari saya yang terlewat hehe :)
-----------------------------------------------------------------------------------------------------------------------------------------
Okey
sobat, sampai sini dulu pembahasan mengenai EBC ini, mohon maaf jika
penjelasan yang diberikan terlalu singkat, karena jika penjelasan
didetail secara per item maka uraian akan menjadi terlalu panjang, jadi
monggo,… silahkan jika ada sobat yang ingin bertanya seputar spreadsheet
ini. Jika ada pertanyaan dari sobat yang bisa saya jawab maka akan saya
jawab, tapi jika tidak, maka akan saya jadikan PR (harap maklum,
soalnya saya sendiri juga masih belajar ^_^).
bagi yang ingin mendownload file EBC silahkan klik link dibawah ini
File : EBC.XLS
EBC
boleh sobat edit dan dimodif sedemikian rupa untuk kemudahan. Jika ada
kritik, saran atau koreksi seputar spreadsheet ini, dengan senang hati
saya akan menerimanya.
Silahkan sobat sampaikan langsung via email atau blog
email q : maestromusic.lutfi@gmail.com
(Nb : saya sangat berharap koreksi dan masukan dari rekan2 semuanya ^_^)
-----------------------------------------------------------------------------------------------------------------------------------------
Oh iya sobat,… berikut adalah beberapa proyek yang pernah saya kerjakan dengan menggunakan EBC, diantaranya adalah :
Analisa Struktur dengan SAP 2000 – Design Tulangan Balok Dengan Spreadsheet EBC
Analisa Struktur dengan STAAD Pro – Design Tulangan Balok Dengan Spreadsheet EBC
Analisa Struktur dengan STAAD Pro – Design Tulangan Balok Dengan Spreadsheet EBC
TANYA JAWAB
TANYA JAWAB
File sudah rohmat terima.
Rohmat akan mencoba apa yang ada dalam tutorial web Bpk, jika nanti ada kendala rohmat minta penjesalan dari Bpk.
Pa,
jika ada bentang balok yg terpotong balok anak, apakah modul EBC ini
bisa digunakan? krn nomor frame dalam 1 bentang akan menjadi 2 nomor /
lebih. sedang kan 1 bentang normal hanya memiliki 1 nomor frame (terdiri
tump kiri, lapangan dan tump kanan).
mohon penjelasannya atau punya modul EBC yang lebih untuk penyelesaian kasus yg kompleks tsb.
Terimakasih.
Tanggapan saya :
Tentu
saja bisa, tapi dengan catatan, hasil desain dari EBC tersebut,
khususnya untuk balok yang terpisah oleh balok anak tersebut harus
diolah lagi.
Untuk lebih jelasnya lihat gambar portal struktur dibawah ini :
(gb1. portal struktur beserta pembebanannya)
Struktur
terdiri atas 4 portal dengan jarak masing-masing portal = 4m dan
memiliki lebar bentang 9 m. Selain berat sendiri, struktur tersebut
menahan beban hidup 250 kg/m2 dan beban dinding setinggi 4 m. Lihat
gambar diatas.
Ukuran kolom portal = 40/40,
Balok portal (induk) = 30/80, dan balok anak = 20/35. Dilapangan
tersedia besi tulangan ulir diameter 16 mm dan besi polos diameter 8 mm.
Nah,
Katakanlah saya akan menganalisa balok induk dari salah satu portal.
Misalkan saja saya ambil balok induk bernomor frame 5, 26 dan 25, Lihat
saya blok warnah merah. Balok induk ini terpotong oleh balok anak nomor
23,30 dan 24,32
(gb2. portal struktur)
Dari analisa STAAD didapat hasil gaya dalam (momen & geser) dari balok induk tersebut sebagai berikut :
(gb3. diagram momen)
(gb5. tabel gaya dalam setelah dicopy ke excel)
Data
dari gaya dalam ini kemudian dicopy ke sheet “Output STAAD pada
spreadsheet EBC, sehingga didapatkan hasil sebagai berikut :
(gb6. tabel gaya dalam setelah dimasukan ke EBC)
Kemudian dilanjutkan dengan memasukan ukuran rencana balok pada sheet “Rencana Balok”
(gb7. input data balok)
Setelah
data ukuran rencana balok dimasukan, maka hasil desain tulangan lentur,
geser dan torsi dapat dilihat di sheet “desain tulangan
lentur/geser/torsi”
(gb8. desain tulangan lentur)
(gb9. desain tulangan geser)
(gb10. desain tulangan torsi)
Nah,
Mas Rohmat, hasil dari desain tulangan yang kita dapat dari spreadsheet
EBC diatas ini masih mentah, atau dengan kata lain hasil desain
tulangannya masih belum diolah dan dipilah-pilah berdasarkan posisi dari
tulangannya masing-masing. Jadi mana hasil desain tulangan yang
ditempatkan di tumpuan kiri, tumpuan kanan dan lapangan, masih belum
diketahui, sehingga kita harus memilah kembali hasil desain tulangan
dari EBC ini.
Okey, sekarang kita akan mengolah
kembali hasil dari desain tulangan tersebut. Saya ambil contoh untuk
desain dari tulangan lentur. Untuk itu mari kita perhatikan kembali
diagram momen dari balok induk tersebut pada gambar dibawah ini.
(gb11. diagram momen balok)
Dari gambar diatas terlihat, balok tersebut tersusun atas 3 frame, yaitu frame 5, frame 25 dan frame 26, dimana panjang masing-masing dari frame tersebut berturut turut adalah 3m, 3m dan 3m, sehingga totalnya adalah 9 m.
Sekarang
kita tinjau secara praktis pembagian daerah tulangannya, yaitu 1/4
bentang untuk daerah tumpuan kiri, 1/2 bentang untuk daerah lapangan,
dan 1/4 bentang sisanya untuk daerah tumpuan kanan. Dari gambar bisa
terlihat, frame 5 masuk dalam 1/4 bentang daerah tumpuan kiri, frame 26
masuk dalam daerah lapangan (tengah) dan frame 25 masuk dalam 1/4
bentang daerah tumpuan kanan.
Jika ditinjau dari posisi momen maksimal yang terjadi, momen tumpuan maks sebelah kiri terjadi pada x = 0 (berada di frame 5),
momen lapangan maks terjadi pada tengah bentang atau pada posisi x =
1/2 (9m) = 4.5 m jika ditinjau dari keseluruhan bentang, atau x = 1/2 (3m) = 1.5m jika ditinjau dari panjang frame 26. Sedangkan momen tumpuan maks sebelah kanan terjadi pada x = 12 m jika ditinjau dari keseluruhan bentang , atau x = 3 m jika ditinjau dari panjang frame 25.
Dari
analisa posisi ini, kita bisa memberikan tanda pada tabel EBC, letak
posisi momen maksimal tumpuan ataupun lapangan dari balok tersebut
sebagai bahan untuk mendesain tulangan lenturnya.
Untuk menandainya, saya biasanya memberikan warna khusus pada posisi dimana momen maksimal terjadi, sedangkan untuk baloknya itu sendiri, yaitu yang terpisah menjadi beberapa frame, saya beri kode tersendiri pada frame2 yang merangkai balok tersebut. Untuk jelasnya lihat gambar berikut :
(gb12. desain tulangan lentur – dipilah dengan warna kuning)
(gb13. desain tulangan lentur – dipilah dengan warna kuning)
Nah,
Mas Rohmat, setelah diolah dan dipilah-pilah dengan warna, didapatkan
desain untuk tulangan tumpuan kiri (tulangan atas) = 5D16, tumpuan kanan (tulangan atas) = 5D16 dan tulangan lapangan (tulangan bawah/tarik) = 9D16.
Jadi kalau saya gambarkan ke AutoCAD, kurang lebih potongan balok dan detail baloknya adalah sebagai berikut :
(gb14. potongan balok)
(gb15. detail balok)
Dari
detail balok yang saya gambarkan diatas, mungkin Mas Rohmat bertanya,
“kenapa kok ada tulangan samping 2D13, sedangkan di EBC, balok didesain
tidak memerlukan tulangan torsi?”
Jawabannya, ada diperaturan SNI 03-2847, jadi monggo silahkan dibuka sendiri peraturannya hehe ^_^
Nah, sekarang bagaimana untuk desain tulangan geser, dan tulangan torsinya?
Ya sama aja seperti desain tulangan lentur, juga harus diolah dan dipilah-pilah seperti desain tulangan lentur
Catatan :Pada dasarnya semua gaya dalam dari semua member/element yang dianalisa oleh STAAD bisa dimasukan semua ke EBC untuk dicari desain tulangannya, tapi yang jadi masalah adalah, jika ternyata member/element yang akan dianalisa itu jumlahnya sangat banyak sekali mencapai ratusan bahkan ribuan segmen, sehingga ngontrol dan ngecek nya pun juga menjadi banyak. ini jelas menjadi tidak efektif dari segi apapun, dari segi waktu juga terbuang banyak karena hanya berkutat di desain balok saja, dari segi view laporan juga terkesan "ruwet" padahal hanya sebatas desain balok saja, apalagi dari segi laporan, bisa dibayangkan banyaknya lembar output data yang harus diprint, bisa bikin habis kertas dan tinta printer hehehe...Sebenarnya untuk desain struktur balok menggunakan program, tidak perlu dengan memasukan semua data gaya dalam ke spreadsheet EBC, tapi cukup dengan memasukan data gaya dalam dari member/element mana saja yang perlu untuk didesain, sebagai suatu contoh, jika struktur yang dianalisa memiliki geometri portal yang typikal seperti struktur Ruko pada umumnya, maka cukup diambil data gaya dalam dari member/elemen dari beberapa portal tertentu saja yang dianggap mewakili yang lainnya, sehingga nantinya tidak terlalu banyak type balok dikarenakan beda desain konfigurasi tulangannya.Bukankah terlalu banyak type balok dengan berbagai macam konfigurasi tulangan, justru malah tidak efektif untuk pelaksanaan dilapangan, iya khan? ^_^